Plans
Cliquez sur chaque image de plan pour l’agrandir.

Le plan ci-dessus représente le plan général des niveaux J2 et J3 et indique où se trouve l’accueil, les ascenseurs, les zones de circulation et les issues.

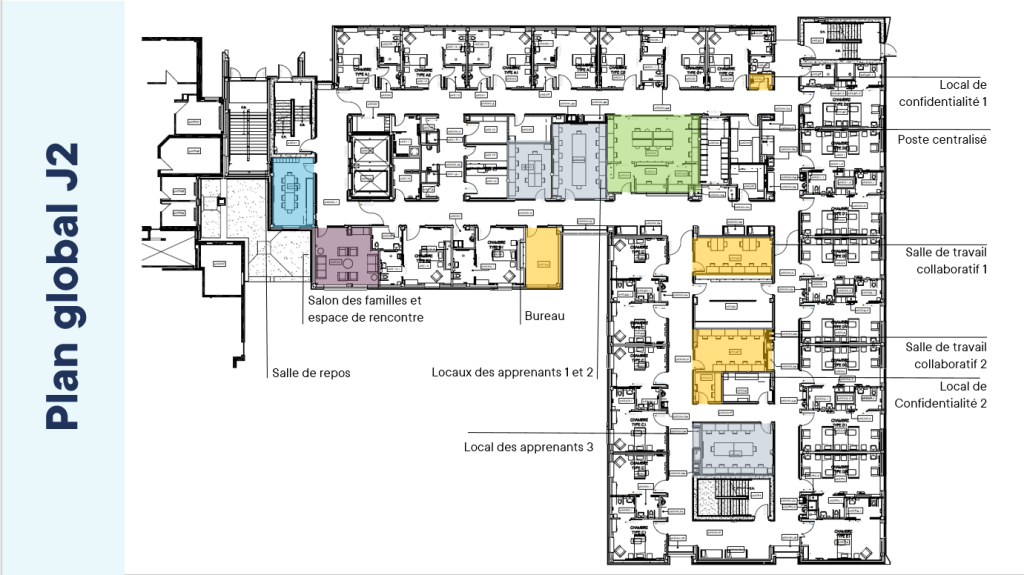
Voici le plan du niveau J2 où l’on peut voir salle de repos, salon des familles, chambres, salles de travail collaboratif, le poste centralisé, etc.

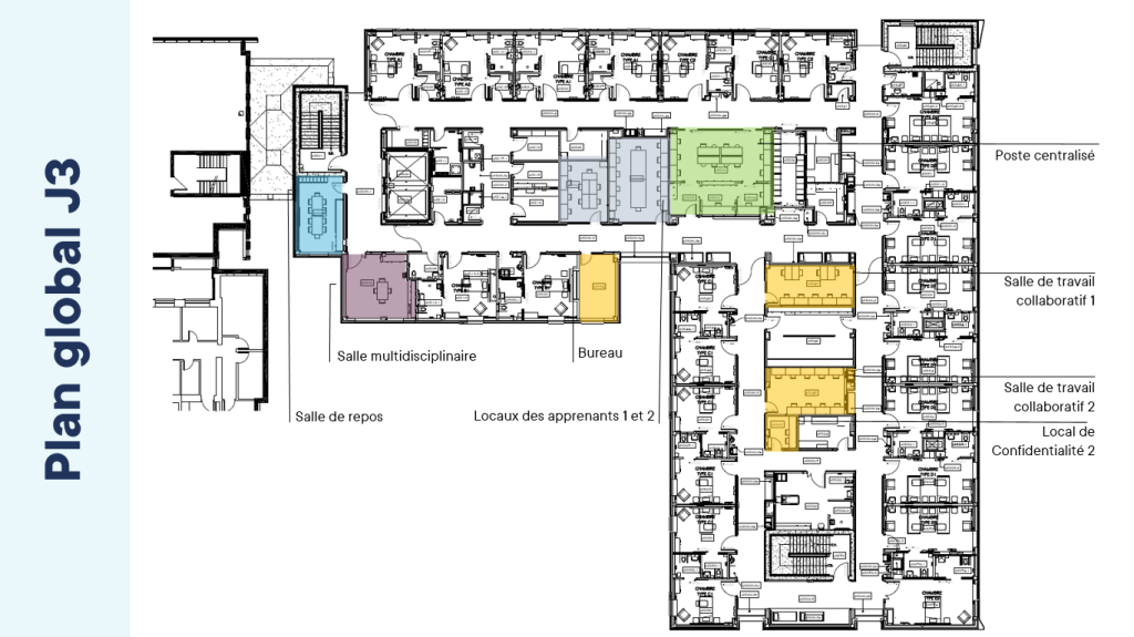
Ici, au niveau J3, nous y voyons salle de repos, salle multidisciplinaire, salles de travail collaboratif, etc.
Photos de l’intérieur, en date de septembre 2025









Photos de l’intérieur, en date de juillet 2025
Cela devient de plus en plus concret! Voici quelques photos prises en juin et juillet 2025.









Photos de l’intérieur, en date de février 2025
Il peut être difficile de se projeter, mais voici quelques photos de l’intérieur du Pavillon J. Vous pouvez voir la taille des fenêtres et des corridors, un future salle de repos, une future chambre double, l’entrée du personnel (avec les escaliers à l’intérieur plutôt qu’à l’extérieur!).











Avancement de la construction du pavillon J
Le constructeur a diffusé une vidéo montrant l’état d’avancement en date d’août 2024.